Wohnung zum Kauf in Düsseldorf / Unterbach
Attraktive Galeriewohnung am Unterbacher See

offen

Beschreibung

Attraktive Galeriewohnung im zweiten Obergeschoss.

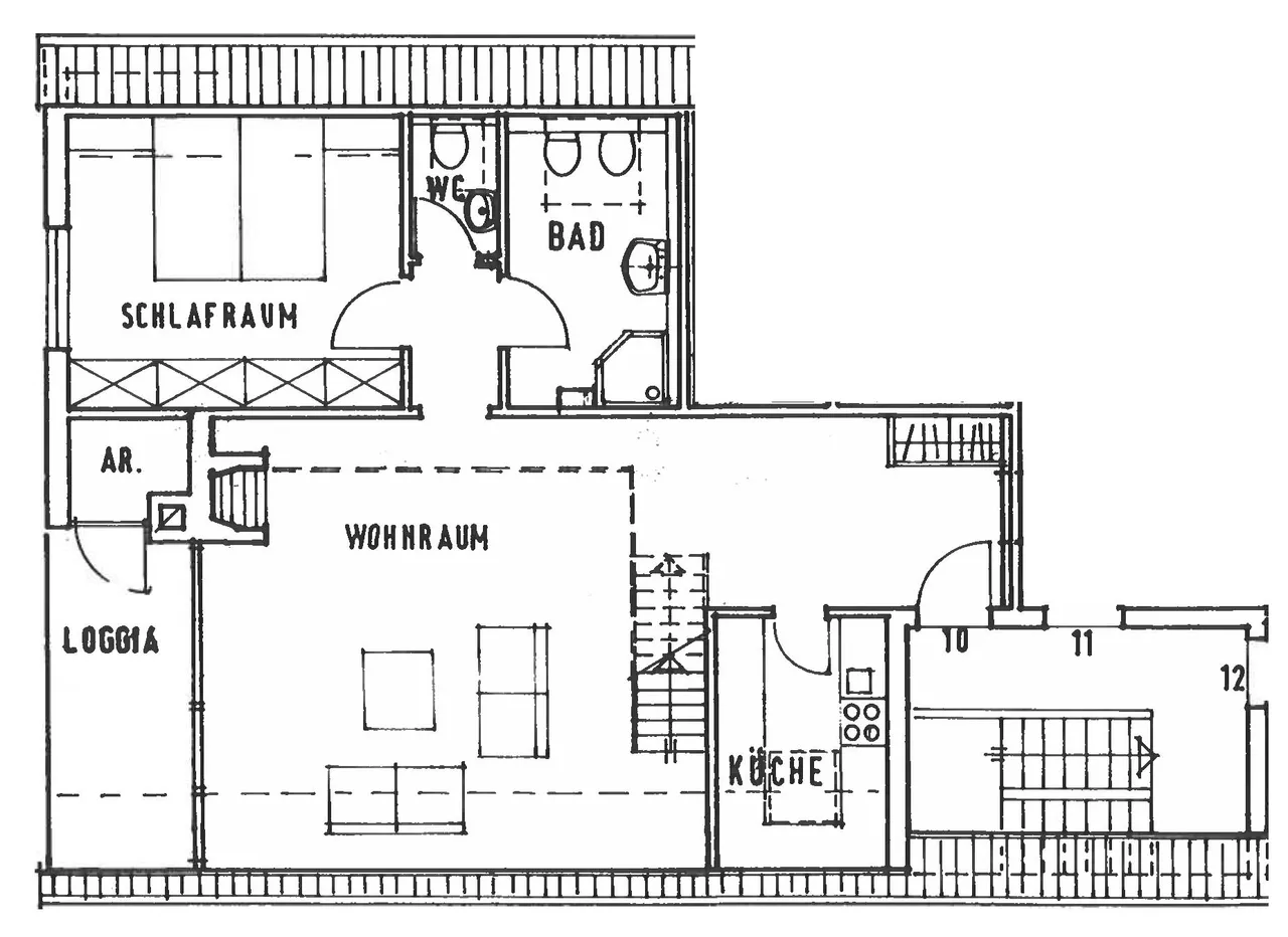
Mittelpunkt der Wohnung ist der offen gestaltete Wohn- und Essbereich mit über 38 m². Das große Fensterelement mit Zugang zur Südloggia sind ein echter Blickfang und sorgen für viel Licht. Besonders praktisch ist der Abstellraum an der Loggia für Balkonutensilien.

Schlafzimmer, Küche, Duschbad sowie ein Gäste-WC ergänzen die Eingangsebene.

Über eine Treppe gelangt man auf die offene Galerie – ideal als Home-Office. Ein weiterer, separat zugänglicher Raum komplettiert diese Ebene.

Die Wohnung ist langjährig vermietet.

Ausstattung

- Wohnfläche ca. 103 m² zzgl. Nutzfläche (Spitzboden) ca. 17 m²
- Tageslicht Duschbad und separates Gäste-WC
- Fliesen- und Teppichböden
- Loggia in Südausrichtung mit Abstellraum
- Elektro-Fußbodenheizung
- Kellerraum

Lage

Der im Düsseldorfer Süden gelegene Stadtteil Unterbach zählt zu den beliebtesten Wohngebieten in grüner Randlage der Landeshauptstadt.

Erholung pur bietet gleich in der Nachbarschaft der Unterbacher See mit seinen Strandbädern, zum Joggen, Fahrradfahren oder Segeln. Hier leben Sie nah an der Natur, in gehobener Nachbarschaft und trotzdem verkehrsgünstig.

Die Verkehrsanbindungen sind ausgezeichnet. Die A 46 Richtung Düsseldorf, Wuppertal und Ruhrgebiet ist in wenigen Minuten schnell erreicht. Die Buslinien 735 und 737 pendeln zwischen Düsseldorfer City, Unterbach, Erkrath und Hilden.

Tägliche Einkäufe erledigt man am nahegelegenen Breidenplatz oder am Neuenhausplatz. Hier gibt es moderne REWE-Märkte, Bäcker und Apotheken.

Für den Nachwuchs befinden sich Wichernschule und katholischer Kindergarten in der Nähe. Der Düsseldorfer Flughafen liegt nur 18 km entfernt.

Sonstiges

Eigentum am Unterbacher See!

Energieausweis: Nicht vorhanden / in Vorbereitung!

Ansprechpartner

Gunnar Woelk

Telefon: 02103 - 97 60 796
Telefax: 0211 - 92 96 89 29

info@immo-woelk.de

Kontakt aufnehmen

Wohnung zum Kauf

Kaufpreis 370.000 €
Adresse 40627 Düsseldorf / Unterbach
Wohnfläche ca. 120 m²
Zimmer 3
Objekt-Nr. 5951

Käuferprovision

3,57 % vom Kaufpreis (inkl. MwSt.)

Ausstattung

Anzahl Badezimmer 1
Anzahl Schlafzimmer 2
Anzahl Zimmer 3
Ausrichtung Balkon/Terrasse Süden
Bad mit Dusche, Fenster
Baujahr 1971
Befeuerungsart Elektro
Heizungsart Fußbodenheizung
Unterkellert
Verkaufstatus offen

Erfolg! Vielen Dank für Ihre Bewertung.

Fehler! Bitte füllen Sie alle Felder aus.